Home
IC Finder
Glossary
Login | Register
Home
IC Finder
Glossary
Login | Register
Payment
Reseller
Contact Us
About Us
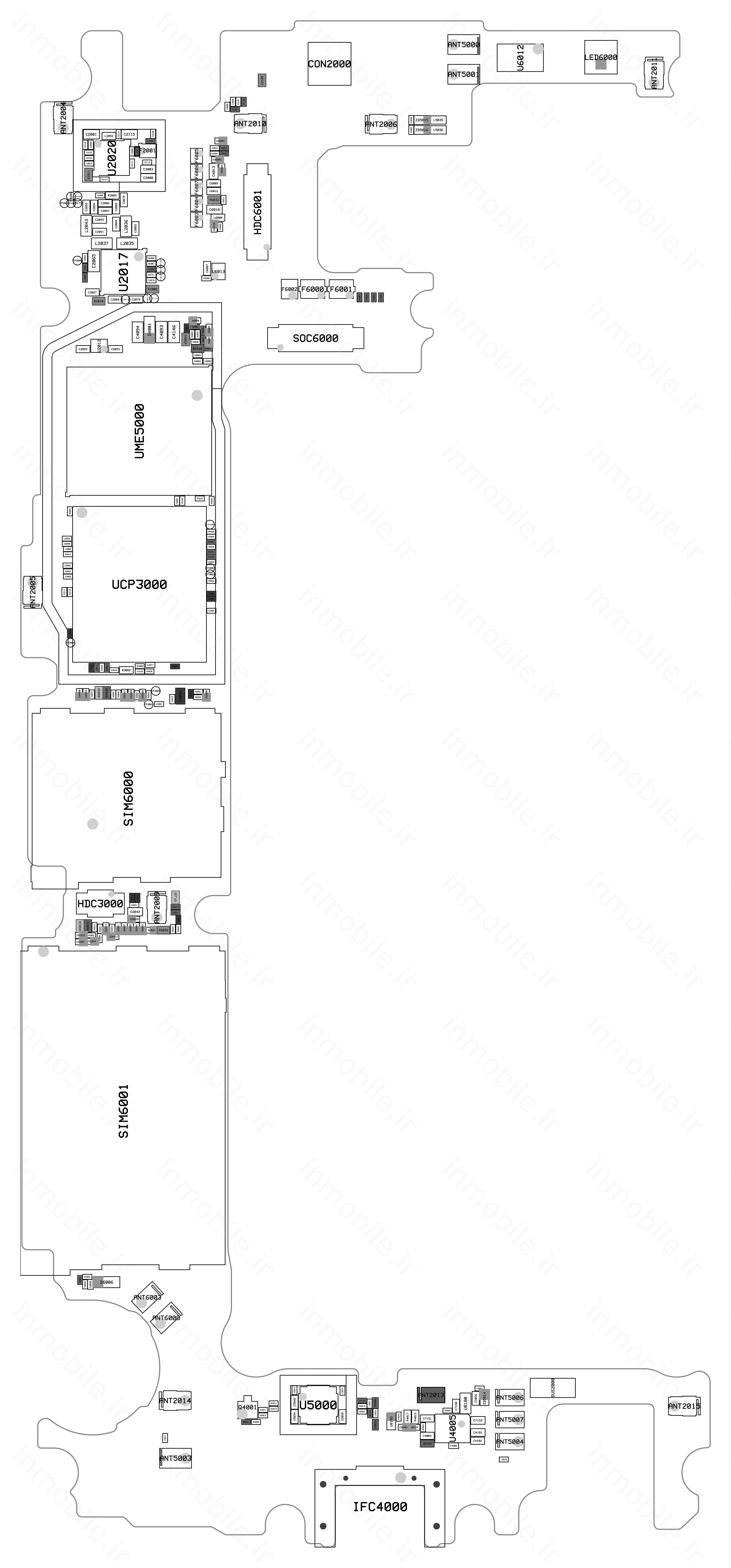
Samsung Galaxy J3 2017 (SM-J3300)
Filter ICs based on failure
-
GPS doesn't connect to satellite
GPS doesn’t turn on
LCD Doesn’t have backlight
Main camera Flash LED doesn’t turn on
NFC doesn’t turn on
USB OTG doesn’t turn on (USB peripheral device can't connect to mobile phone)
2.4GHz WIFI antenna weakness
WIFI doesn’t turn on
Bluetooth doesn’t turn on
Bluetooth antenna weakness
FM radio doesn’t turn on
Finger Print sensor doesn’t work
Accelerometer sensor doesn’t work
Fast Charge doesn't work
Internal speaker fault
Headphone doesn’t have audio
Bluetooth handset's speaker fault
Earpiece speaker fault
Display screen fault (Black display)
RF antenna weakness
No Network Coverage in 3G
No Network Coverage in 4G
No Network Coverage in GSM
Main microphone (Lower Mic) doesn’t work
2th microphone (Upper Mic) doesn’t work
Bluetooth handset's microphone doesn’t work
Hands free's microphone doesn’t work
Vibrator doesn’t work
USB Port fault (computer can't detect the phone)
Touch keys don’t work
Phone can't be wiped
Phone doesn’t detect charger
Unknown Baseband
Phone resets by itself
Battery Charging is slow
Phone doesn’t turn on
Phone hangs on logo
IMEI Null
Battery discharge is fast
Phone detects charger, but battery is not charged
Phone is charged only in off mode
Phone can't detect headphone and hands free
Phone not entering recovery mode
IC manufacturer
IC type
IC Part Number
.No
Please login and charge your account
Please login and charge your account
Please login and charge your account
1
Please login and charge your account
Please login and charge your account
Please login and charge your account
2
Please login and charge your account
Please login and charge your account
Please login and charge your account
3
Please login and charge your account
Please login and charge your account
Please login and charge your account
4
Please login and charge your account
Please login and charge your account
Please login and charge your account
5
Please login and charge your account
Please login and charge your account
Please login and charge your account
6
Please login and charge your account
Please login and charge your account
Please login and charge your account
7
Please login and charge your account
Please login and charge your account
Please login and charge your account
8
Please login and charge your account
Please login and charge your account
Please login and charge your account
9
Please login and charge your account
Please login and charge your account
Please login and charge your account
10
Please login and charge your account
Please login and charge your account
Please login and charge your account
11
Please login and charge your account
Please login and charge your account
Please login and charge your account
12
Please login and charge your account
Please login and charge your account
Please login and charge your account
13
Please login and charge your account
Please login and charge your account
Please login and charge your account
14
Please login and charge your account
Please login and charge your account
Please login and charge your account
15
Please login and charge your account
Please login and charge your account
Please login and charge your account
16
Please login and charge your account
Please login and charge your account
Please login and charge your account
17
Please login and charge your account
Please login and charge your account
Please login and charge your account
18
Please login and charge your account
Please login and charge your account
Please login and charge your account
19
Please login and charge your account
Please login and charge your account
Please login and charge your account
20
Please login and charge your account
Please login and charge your account
Please login and charge your account
21
Please login and charge your account
Please login and charge your account
Please login and charge your account
22
Please login and charge your account
Please login and charge your account
Please login and charge your account
23
Please login and charge your account
Please login and charge your account
Please login and charge your account
24
Please login and charge your account
Please login and charge your account
Please login and charge your account
25
Please login and charge your account
Please login and charge your account
Please login and charge your account
26
Please login and charge your account
Please login and charge your account
Please login and charge your account
27
Please login and charge your account
Please login and charge your account
Please login and charge your account
28
Please login and charge your account
Please login and charge your account
Please login and charge your account
29
Please login and charge your account
Please login and charge your account
Please login and charge your account
30
Please login and charge your account
Please login and charge your account
Please login and charge your account
31
Please login and charge your account
Please login and charge your account
Please login and charge your account
32
Please login and charge your account
Please login and charge your account
Please login and charge your account
33
Please login and charge your account
Please login and charge your account
Please login and charge your account
34
Please login and charge your account
Please login and charge your account
Please login and charge your account
35
Please login and charge your account
Please login and charge your account
Please login and charge your account
36
Please login and charge your account
Please login and charge your account
Please login and charge your account
37
Please login and charge your account
Please login and charge your account
Please login and charge your account
38
Please login and charge your account
Please login and charge your account
Please login and charge your account
39
Please login and charge your account
Please login and charge your account
Please login and charge your account
40
Please login and charge your account
Please login and charge your account
Please login and charge your account
41
Please login and charge your account
Please login and charge your account
Please login and charge your account
42
Please login and charge your account
Please login and charge your account
Please login and charge your account
43
Please login and charge your account
Please login and charge your account
Please login and charge your account
44
Please login and charge your account
Please login and charge your account
Please login and charge your account
45
Please login and charge your account
Please login and charge your account
Please login and charge your account
46
Please login and charge your account
Please login and charge your account
Please login and charge your account
47
Please login and charge your account
Please login and charge your account
Please login and charge your account
48
Please login and charge your account
Please login and charge your account
Please login and charge your account
49
Please login and charge your account
Please login and charge your account
Please login and charge your account
50
Please login and charge your account
Please login and charge your account
Please login and charge your account
51
Please login and charge your account
Please login and charge your account
Please login and charge your account
52